TD、TH型斗式提升機
概述
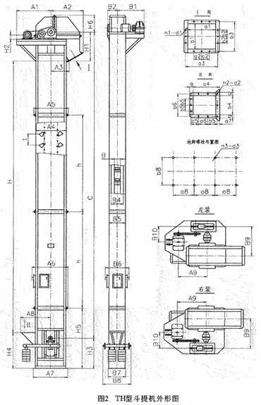
目前,國內常用的斗式提升機均為垂直式,較新型符合標準TB3926--85的有TD型、TH型。料斗有四種類型:Q型(淺斗)、ZD型(中深斗)、H型(弧底斗)、SD型(深斗) 。YZ型軸裝減速器直接套裝在主軸軸頭上,省去了傳動平臺、聯軸器等,而且其內部帶有異型輥逆止器,逆止可靠。
特點
1、TD型斗式提升機結構緊湊,重量輕。
2、減速器噪聲低,運轉平穩,并隨主軸浮動,可消除安裝應力。
3、傳動裝置有兩種形式,分別配有YZ型減速器或ZQ(YY)型減速器。
參數
一、概述
目前國內常用的斗提機均為垂直式,較新型符合標準TB3926--85的有TD型、TH型它們的主要特征、用途及型號見表l
表1、TD、TH型斗提機特征、型號表
型 式 |
TD 型 |
TH 型 |
結構特征 |
采用橡膠帶作牽引構件 |
采用鍛造的環形鏈條作為牽引構件 |
卸載特征 |
采用離心式或混合式方式卸料 |
采用混合式或重力式方式卸料 |
適用輸送物料 |
松散密度ρ< 1 . 5t/m3 的粉狀、粒狀, 小塊狀的無磨琢性、半磨琢性物料 |
松散密度 p < 1 . 5t / m ’的粉狀、粒狀 . 小塊狀的無磨琢性、半磨琢性物料 |
適用溫度 |
被輸送物料溫度不得超過 60 ℃,如采用耐熱橡膠帶時溫度不超 200 ℃ |
被輸送物料溫度不得超過 250 ℃ |
型 號 |
TDl00 、 TD1 60 、 TD250 、 TD315 , TD400 、 T D500 、 TD630 TD400 、 T D500 、 TD630 |
TH315 、 TH400 、 TH500 、 TH630(TH800)(TH1000) ① TH630(TH800)(TH1000) ① |
提升高度 |
約在 4 — 40m m 范圍內 |
約在 4 . 5 — 40mm 范圍內 |
輸送量 |
4 — 238m3 / h |
35 — 185m3/h |
二、主要結構
1、TD型斗提機結構型式
(1)傳動裝置 TD型斗提機的傳動裝置有兩種形式,分別配有YZ型減速器或ZQ(YY)型減速器。YZ型軸裝減速器直接套裝在主軸軸頭上,省去了傳動平臺、聯軸器等,便結構緊湊,重量輕,而且其內部帶有異型輥逆止器,逆止可靠。該減速器噪聲低,運轉平穩,并隨主軸浮動,可消除安裝應力。
(2)TD型斗提機備有四種料斗Q型(淺斗)、H型(弧底斗)、ZD型(中深斗)、SD型(深 斗)
表2 TD型斗提機技術性能
斗提機型號 |
TD100 |
TD160 |
TD250 |
TD315 |
|||||||||||||||
料斗型式 |
Q |
H |
Q |
H |
Zd |
Sd |
Q |
H |
Zd |
Sd |
Q |
H |
Zd |
Sd |
|||||
輸送量 m3 / h |
4 |
7 . 6 |
9 16 16 27 |
20 |
36 |
38 |
59 |
28 |
50 |
42 |
67 |
||||||||
料斗容積 L |
0 . 15 |
0 . 3 |
049 0 . 9 1 . 2 1 . 9 |
1 . 12 |
2 . 24 |
3 . 0 |
4 . 6 |
1 . 95 |
3 . 55 |
3 . 75 |
5 . 8 |
||||||||
料斗運行速度, m/s |
1 . 4 |
1 . 4 |
1 . 6 |
1 . 6 |
|||||||||||||||
滾簡轉速 r/min |
67 |
67 |
61 |
6l |
|||||||||||||||
斗提機型號 |
TD400 |
TD500 |
TD630 |
||||||||||||||||
料斗型式 |
Q |
H |
Zd |
Sd |
Q |
H |
Zd |
Sd |
Q |
H |
Zd |
Sd |
|||||||
輸送量 m3 / h |
40 |
76 |
68 |
UO |
63 |
116 |
96 |
154 |
- |
142 |
148 |
238 |
|||||||
料斗容積 L |
3 . 1 |
56 |
5 . 9 |
9 . 4 |
4 . 84 |
9 . O |
9 . 3 |
14 . 5 |
- |
14 |
14.6 |
23 . 5 |
|||||||
料斗運行速度 r/min |
1 . 8 |
1 . 8 |
2 . 0 |
||||||||||||||||
滾筒轉速 r/min |
55 |
55 |
48 |
①表中料斗容積為料斗盛水時容積,與實際填充量相近,故輸送量計算時未考慮填充系數,具體選型時應根據物料度,求得由修正值,以此值修正表中所給輸送量。
省換功率Ps、PL表:
附加功率 | TH160 | TH200 | TH250 | TH315 | TH400 | TH500 | TH630 | TH800 | TH1000 | TH1250 |
Ps,kW | 2 | 2 | 2 | 3 | 3 | 4 | 4 | 5 | 5 | 6 |
Pl,kW | 0.2 | 0.2 | 0.3 | 0.5 | 0.8 | 1.2 | 2.2 | 3.4 | 6 | 8.4 |
YY型驅動裝置技術規范及相關尺寸
斗提機型號 |
驅動裝置
|
電動機
|
減速器型號
|
相關尺寸,mm
|
重量kg
|
|||
型號
|
功率kw
|
A1
|
B1
|
H2
|
||||
TH160 |
Y2Y112
|
Y100L1-4
|
2.2
|
ZLY112-11.2-Ⅰ(S)/Ⅱ(N)
|
728
|
815
|
205
|
89
|
Y3Y112
|
Y100L2-4
|
3
|
96
|
|||||
Y4Y112
|
Y112M-4
|
4
|
104
|
|||||
Y5Y112
|
Y132S-4
|
5.5
|
130
|
|||||
Y7Y125
|
Y132M-4
|
7.5
|
ZLY125-11.2-Ⅰ(S)/Ⅱ(N)
|
220
|
153
|
|||
TH200 |
Y3Y112
|
Y112M-4
|
3
|
ZLY112-12.5-Ⅰ(S)/Ⅱ(N)
|
734
|
960
|
205
|
112
|
Y4Y112
|
Y100L2-4
|
4
|
127
|
|||||
Y5Y112
|
Y132S-4
|
5.5
|
154
|
|||||
Y7Y125
|
Y132M-4
|
7.5
|
ZLY125-12.5-Ⅰ(S)/Ⅱ(N)
|
220
|
163
|
|||
Y11Y140
|
Y160M-4
|
11
|
ZLY140-12.5-Ⅰ(S)/Ⅱ(N)
|
260
|
235
|
|||
TH250 |
Y4Y112
|
Y112M-4
|
4
|
ZLY112-18-Ⅰ(S)/Ⅱ(N)
|
698
|
1023
|
205
|
184
|
Y5Y125
|
Y132S-4
|
5.5
|
ZLY125-18-Ⅰ(S)/Ⅱ(N)
|
220
|
195
|
|||
Y7Y140
|
Y132M-4
|
7.5
|
ZLY140-18-Ⅰ(S)/Ⅱ(N)
|
260
|
278
|
|||
Y11Y160
|
Y160M-4
|
11
|
ZLY160-18-Ⅰ(S)/Ⅱ(N)
|
280
|
360
|
|||
Y15Y180
|
Y160L-4
|
15
|
ZLY180-18-Ⅰ(S)/Ⅱ(N)
|
320
|
416
|
|||
TH315 |
Y5Y125
|
Y132S-4
|
5.5
|
ZLY125-20-Ⅰ(S)/Ⅱ(N)
|
718
|
1025
|
220
|
205
|
Y7Y140
|
Y132M-4
|
7.5
|
ZLY140-20-Ⅰ(S)/Ⅱ(N)
|
260
|
310
|
|||
Y11Y160
|
Y160M-4
|
11
|
ZLY160-20-Ⅰ(S)/Ⅱ(N)
|
280
|
380
|
|||
Y15Y180
|
Y160L-4
|
15
|
ZLY180-20-Ⅰ(S)/Ⅱ(N)
|
720
|
1156
|
320
|
536
|
|
Y18Y180
|
Y180M-4
|
18.5
|
564
|
|||||
TH400 |
Y7Y140
|
Y132M-4
|
7.5
|
ZLY140-20-Ⅰ(S)/Ⅱ(N)
|
854
|
1318
|
260
|
520
|
Y11Y160
|
Y160M-4
|
11
|
ZLY160-20-Ⅰ(S)/Ⅱ(N)
|
280
|
575
|
|||
Y15Y180
|
Y160L-4
|
15
|
ZLY180-20-Ⅰ(S)/Ⅱ(N)
|
320
|
672
|
|||
Y18Y180
|
Y180M-4
|
18.5
|
690
|
|||||
Y22Y200
|
Y180L-4
|
22
|
ZLY200-20-Ⅰ(S)/Ⅱ(N)
|
345
|
827
|
|||
TH500 |
Y11Y160
|
Y160M-4
|
11
|
ZLY160-20-Ⅰ(S)/Ⅱ(N)
|
1042
|
1394
|
280
|
658
|
Y15Y180
|
Y160L-4
|
15
|
ZLY180-20-Ⅰ(S)/Ⅱ(N)
|
320
|
708
|
|||
Y18Y180
|
Y180M-4
|
18.5
|
830
|
|||||
Y22Y200
|
Y180L-4
|
22
|
ZLY200-20-Ⅰ(S)/Ⅱ(N)
|
345
|
858
|
|||
Y30Y224
|
Y200L-4
|
30
|
ZLY224-20-Ⅰ(S)/Ⅱ(N)
|
370
|
946
|
TH630 |
Y18Y200
|
Y180M-4
|
18.5
|
ZSY200-22.4-Ⅰ(S)/Ⅱ(N)
|
1042
|
1589
|
345
|
1098
|
Y22Y200
|
Y180L-4
|
22
|
ZSY224-22.4-Ⅰ(S)/Ⅱ(N)
|
1157
|
||||
Y30Y224
|
Y200L-4
|
30
|
370
|
1206
|
||||
Y37Y250
|
Y225S-4
|
37
|
ZSY250-22.4-Ⅰ(S)/Ⅱ(N)
|
400
|
1434
|
|||
Y45Y250
|
Y225M-4
|
45
|
1578
|
|||||
TH800 |
Y30Y224
|
Y200L-4
|
30
|
ZSY224-28-Ⅰ(S)/Ⅱ(N)
|
1178
|
1904
|
370
|
1556
|
Y37Y250
|
Y225S-4
|
37
|
ZSY250-28-Ⅰ(S)/Ⅱ(N)
|
400
|
1784
|
|||
Y45Y280
|
Y225M-4
|
45
|
ZSY250-28-Ⅰ(S)/Ⅱ(N)
|
455
|
1928
|
|||
Y55Y315
|
Y250M-4
|
55
|
ZSY315-28-Ⅰ(S)/Ⅱ(N)
|
495
|
2184
|
|||
Y75Y335
|
Y280S-4
|
75
|
ZSY335-28-Ⅰ(S)/Ⅱ(N)
|
540
|
2724
|
|||
TH1000 |
Y37Y280
|
Y225S-4
|
37
|
ZSY280-31.5-Ⅰ(S)/Ⅱ(N)
|
|
|
455
|
2184
|
Y45Y315
|
Y225M-4
|
45
|
ZSY315-31.5-Ⅰ(S)/Ⅱ(N)
|
495
|
2578
|
|||
Y55Y355
|
Y250M-4
|
55
|
ZSY335-31.5-Ⅰ(S)/Ⅱ(N)
|
540
|
3124
|
|||
Y75Y355
|
Y280S-4
|
75
|
3450
|
|||||
Y90Y400
|
Y280M-4
|
90
|
ZSY400-31.5-Ⅰ(S)/Ⅱ(N)
|
590
|
4039
|
|||
TH1250 |
Y55Y355
|
Y250M-4
|
55
|
ZSY355-31.5-Ⅰ(S)/Ⅱ(N)
|
1285
|
2345
|
540
|
3689
|
Y75Y335
|
Y280S-4
|
75
|
4015
|
|||||
Y90Y400
|
Y280M-4
|
90
|
ZSY400-31.5-Ⅰ(S)/Ⅱ(N)
|
590
|
4604
|
|||
Y110Y400
|
Y315S-4
|
110
|
4689
|
|||||
Y132Y450
|
Y315M1-4
|
132
|
ZSY450-31.5-Ⅰ(S)/Ⅱ(N)
|
640
|
5716
|
用途
斗式提升機適用于垂直輸送顆粒狀、粉狀、小塊狀磨琢性或無磨琢性物料。如:水泥、干粘土、煤、石灰石、生料、熟料等。

相關產品
動態
-
01
2012-03
斗式提升機的顯著優點
斗式提升機具有輸送量大,提升高度高,運行平穩可靠,壽命長顯著優點,供應螺旋給料機通過振動臺投入料斗后機器自動連續運轉向上運送。
-
26
2011-03
GTD型高效斗式提升機
GTD型高效斗式提升機是為滿足市場對大輸送量、大提升高度及結構緊湊的要求而設計的新型提升設備。
-
09
2010-08
有關斗式提升機安裝步驟細節詳解
斗式提升機下部支承面要保證座落在基礎的水平面上,校正后將地腳螺栓緊固。上端面與水平面的平行度允差1/1000。要求下部和中部機殼的中心線力求在同一鉛垂線上,垂直度偏差在1000mm長度上不應超過1mm,總高度的累積偏差不應超過8mm。按標記依次安裝中間機殼,機殼的聯接..
-
02
2013-04
慣性振動輸送機是利用機械共振原理來輸送物料的
慣性振動輸送機是利用機械共振原理來輸送物料的,由于垂直振動輸送機的曲柄半徑遠小于連桿和支桿的長度,可以將料槽的運動近似視為簡單的往復直線諧振運動,斗式提升機的裝載方式有掏取式和流入式兩種。
-
31
2012-08
斗式提升機適用于低處往高處提升
斗式提升機適用于低處往高處提升,垂直振動輸送機主要用于礦山、冶金、化工、輕工、建材、機械、糧食等各行業垂直輸送50毫米以下的粉狀、顆粒狀、塊狀物料,慣性振動輸送機由于應用了機械振動學的自同步原理具有結構簡單。
熱銷產品
-
DZSF直線振動篩
DZSF系列直線振動篩是由篩箱、篩框、振動電機、減振系統及座架等組成。直線振動篩是用振動電機作為振動源,固定在篩箱上兩臺相同的振動電機做相反方向自同步旋轉,振動電機所帶的偏心塊在旋轉時各個瞬間位置所產生的離心力之分力沿拋擲方向作往復運動
立即了解?DZSF直線振動篩
-
CZ系列倉壁振動器
-
ZG系列慣性振動器
-
GZ系列電磁振動給料機
GZ系列電磁振動給料機在生產流程中,用于把塊狀、顆粒狀、粉狀物料從貯料倉或漏斗中定量、均勻、連續地給到受料裝置中去。
立即了解?GZ系列電磁振動給料機